5
$42 Rent
Listed 83 days ago
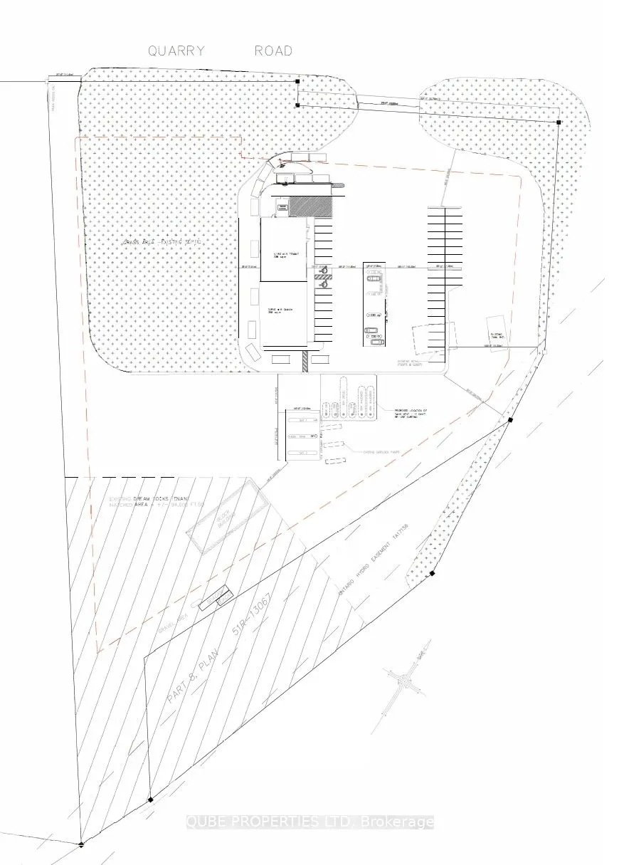
21 Quarry Road
· 0
· 0
· -
· -
Listing History
Buy/Sell/Terminated/Expired listing history for 21 Quarry Road
Key Facts
Key facts for 21 Quarry Road
Property Type
Commercial
Parking
Outside/Surface
MLS #
S12293995
Size
-
Basement
-
Listed on
2025-07-17
Lot size
0 x 0.0
Tax
-
Days on Market
85
Approximate Age
-
Maintenance Fee
-
Description
Prime Retail space available for development, offering up to 4,500 SF with flexible size options and multiple layout configurations. Ideal for a freestanding pad or a clip-on unit with drive-thru capability. Strategically located directly off Highway 400 on/off exit onto Quarry Road in Waubaushene a...djacent to Esso gas station.
Similar Properties (No results)
Courtesy of: QUBE PROPERTIES LTD